产品中心

产品分类

您的位置:首页 - 产品 - 调节阀系列

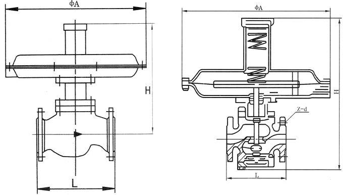
ZZVP自力式微压调节阀

ZZVP自力式微压调节阀

公称通径DN15 ~ DN250

公称压力PN1.6、4.0MPa

法兰标准ANSI、JIS、DIN、GB、JB

阀体材料铸钢(ZG230-450)、铸不锈钢(ZG1Cr18Ni9Ti、ZG1Cr18Ni12Mo2Ti)

阀芯材料硬密封--不锈钢 软密封--不锈钢镶嵌橡胶圈

压力平衡不锈钢波纹管(DN15~125)、平衡膜片(DN150~250)

概述:

ZZVP自力式微压调节阀本系列产品根椐微压调节阀阀芯形式分为单座(ZZVP、ZZCP)、双座(ZZVN、ZZCN)两种结构;微压调节阀作用型式有减压用阀后压力调节(B型)和泄压用阀前压力调节(K型)。产品公称压力等级有PN0.1、1.0、1.6(MPa);口径范围DN20~300;泄漏量等级有Ⅱ级、Ⅳ级、Ⅴ级和VI级4档;流量特性为快开;压力调节范围在0.4~150kPa分档,微压调节阀可按用户需要组合满足工况要求。

产品参数:

201507271521494314.png

002.png

003.png